EHPAD LOUIS PHILIBERT
EHPAD Louis Philibert – Le Puy-Sainte-Réparade (13610)
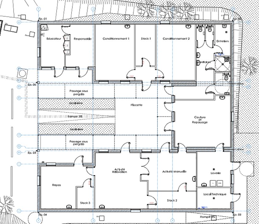
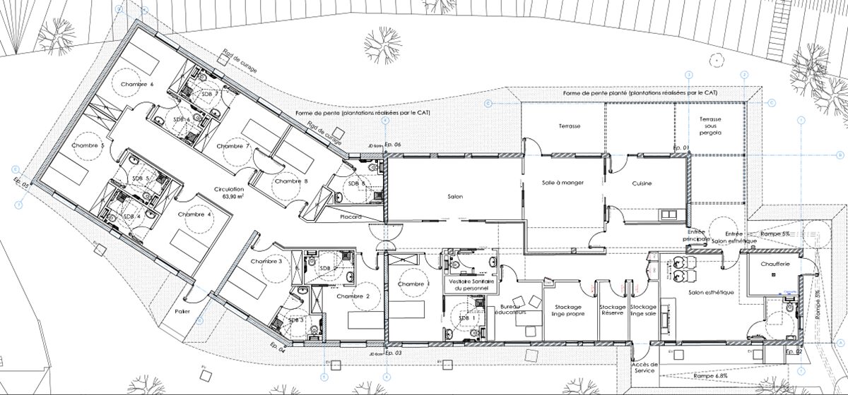
A.I.S est intervenu au sein de l’EHPAD Louis Philibert pour la création d’un local atelier et de foyers d’hébergements destinés aux personnes âgées dépendantes.
Ce projet a nécessité une approche technique et réglementaire rigoureuse, en environnement contraint (établissement recevant du public de type J – établissements de soins).
Les missions réalisées par A.I.S :
Étude économique et DCE (Dossier de Consultation des Entreprises) : établissement d’une estimation précise des coûts, rédaction des lots techniques, préparation des pièces pour la consultation des entreprises ;
Maîtrise d’œuvre en mission DET (Direction de l’Exécution des Travaux) : coordination des intervenants (maçons, électriciens, plombiers, menuisiers), suivi du planning et du budget, contrôle de la conformité aux normes ERP (accessibilité PMR, sécurité incendie, désenfumage), assistance aux opérations de réception.
Le résultat : des espaces fonctionnels, sécurisés et adaptés aux besoins des résidents et du personnel, intégrés harmonieusement au sein de l’EHPAD existant.
✓ Étude économique DCE : estimation, consultation des entreprises
✓ Mission : Maître d’œuvre – DET
