VILLA NEGVEL - SAINTE MAXIME
Villa NegVel – Sainte-Maxime (83120) – Démolition partielle, réfection, extension, piscine et jardin
A.I.S est intervenu sur la Villa NegVel, située au 11 boulevard du soleil à Sainte-Maxime (83120), pour une opération complète de réhabilitation et extension, de la démolition partielle à l’aménagement extérieur (piscine et jardin).
Maître d’ouvrage : Mme Martine ROGE (90 rue du Bourg Belé, 72000 Le Mans)
Missions et travaux réalisés par A.I.S :
Démolition partielle et curage :
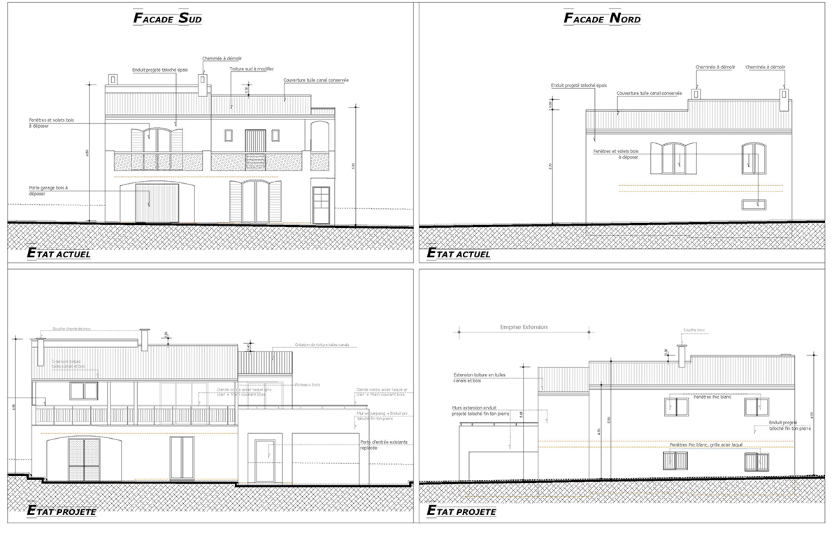
Dépose des fenêtres et volets bois existants (façade sud : 4 800 € ; façade nord : 5 800 €), dépose de la porte de garage bois (500 €), nettoyage complet du bâti, évacuation des gravats.Réfection totale et réaménagement intérieur (RDC) :
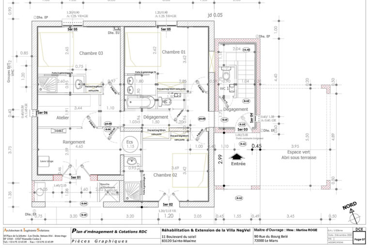
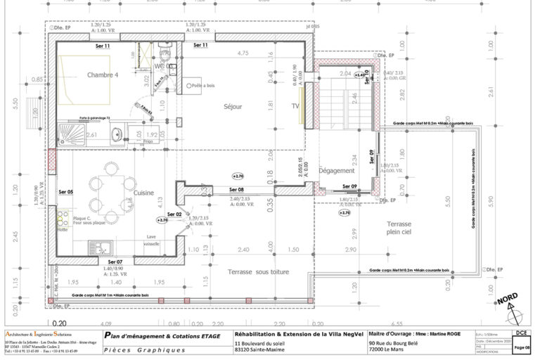
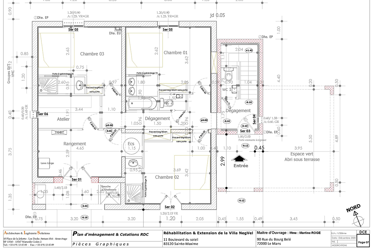
Reconfiguration des espaces (chambres 01 et 02, séjour, entrée, sanitaires – Ser 02, 03, 04, 05), création de nouvelles cloisons, reprise des réseaux (électricité, plomberie, EU/EV), isolation, nouveaux revêtements. Plan d’aménagement détaillé avec cotations.Extension :
Création de deux extensions (emprises 4,20 m et 2,80 m) avec :
– Toiture en tuiles canal et charpente bois
– Murs en enduit projeté taloché fin ton pierre
– Garde-corps acier laqué gris clair + main courant bois
– Porte d’entrée existante replacéeCouverture et isolation :
Création de toiture tuiles canal, charpente bois, isolation sous toiture (300 mm), faux plafond BA13 rampant, souche inox Poujolat conduit 150 mm.Création d’une piscine et d’un espace jardin :
Conception et réalisation d’une piscine intégrée, aménagement paysager (terrasses, plantations, éclairage), drainage périphérique (drain).Conception et images 3D :
Élaboration des plans (plan d’aménagement RDC, coupe BB état projeté, façades sud et nord), modélisation 3D photoréaliste pour visualiser l’extension, la piscine et le jardin.Maîtrise d’œuvre en mission DET (Direction de l’Exécution des Travaux) :
Consultation des entreprises, coordination des lots (démolition, maçonnerie, charpente, couverture, électricité, plomberie, piscine, paysagiste), suivi du planning et du budget, contrôle des normes, assistance à la réception.
Résultat : La Villa NegVel a été transformée en une résidence moderne, élégante et fonctionnelle, avec un espace extérieur de qualité (piscine, jardin), dans le respect du cadre naturel de Sainte-Maxime.
✓ Prestations : démolition partielle, curage, réfection totale, réaménagement, extension, piscine, jardin
✓ Conception : plans et images 3D
✓ Mission : Maître d’œuvre – DET






