ASSOCIATION LA PATERNELLE
Extension de la salle de prière et couverture de terrasse
A.I.S a accompagné l’Association La PATERNELLE dans un projet d’agrandissement et d’aménagement de ses locaux, comprenant :
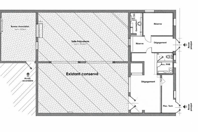
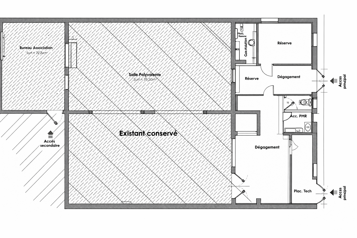
L’extension de la salle de prière : création de surfaces supplémentaires pour accueillir un plus grand nombre de fidèles dans des conditions optimales (confort acoustique, éclairage naturel, ventilation) ;
La création d’une couverture pour la terrasse : protection contre les intempéries et le soleil, permettant d’utiliser cet espace extérieur toute l’année (rassemblements, prières en plein air, moments de convivialité).
Les missions réalisées par A.I.S :
Conception des plans et images 3D : élaboration des plans architecturaux (extension maçonnée ou légère, toiture, raccordement au bâtiment existant), modélisation 3D de la terrasse couverte pour visualiser l’intégration harmonieuse et les choix de matériaux ;
Étude économique complète : estimation des coûts (fondations, charpente, couverture, électricité, menuiseries, finitions), optimisation budgétaire pour respecter l’enveloppe associative ;
Maîtrise d’œuvre en mission DET (Direction de l’Exécution des Travaux) : consultation des entreprises, coordination des lots (gros œuvre, second œuvre, couverture, électricité), suivi du planning et des coûts, contrôle de la conformité aux normes ERP (accessibilité, sécurité incendie), assistance aux opérations de réception.
Le résultat : des espaces agrandis, fonctionnels et sécurisés, permettant à l’association de développer ses activités dans de meilleures conditions.
✓ Conception : plans et images 3D
✓ Étude économique : estimation et optimisation
✓ Mission : Maître d’œuvre – DET


